braintrust.imot.bg Обяви 0 За нас Контакти
Продава 3-СТАЕН
град София, Бояна
360 000 €
704 098.80 лв.

(2 927 €, 5 724.71 лв./m2)
Цената е с включено ДДС
История на цената
Публикувана в 10:33 на 25 ноември, 2025 год.
Обявата е посетена 1246 пъти.
Площ:
123 m2
Етаж:
Партер от 4
Строителство:
Тухла, Ще бъде въведен в експлоатация 2027 г.

Описание на имота:


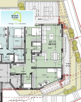
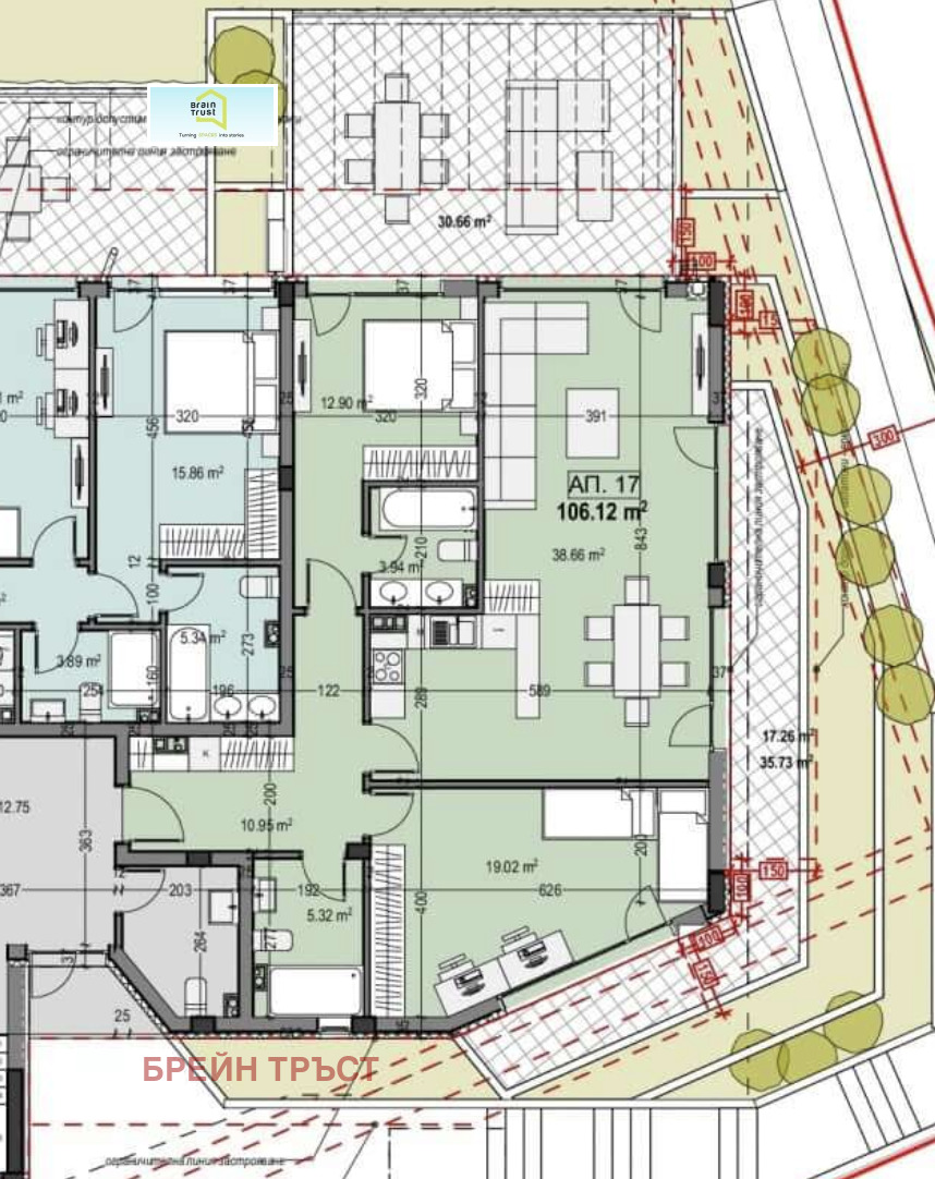
Brain Trust представя тристаен партерен апартамент в комплекс от затоврен тип с акт 14, в квартал Бояна.

Жилището е с чиста площ от 106.12 кв.м. и 87кв.м двор, като разполага с просторна дневна с трапезария и кухненски бокс, две спални, две бани и складово помещение.

Предлагаме още три апартамента в сградата, като има възможност за допълнително закупуване на гараж.

Етап на завършеност: Акт 14

Код на офертата: 6838
За повече информация и контакт: 0877 214 549
Особености
Тухла
Асансьор
В затворен комплекс
За контакт:
02 439 4000
Брокер:
Стела Неделчева
+359 877 214 549
Още оферти от брокера: Продава | Дава под наем | Купува | Наема
Агенция:
БРЕЙН ТРЪСТ
02/4394000
БРЕЙН ТРЪСТ logo
Медал за прослужено време
В imot.bg от 2009 г.
braintrust.imot.bg
Адрес:
област София, гр. София, р. София, ж.к. Лозенец, бул. Джеймс Баучър No 76А, партер
http://www.braintrust.bg
ИЗПРАТИ ЗАПИТВАНЕ
ИЗПРАТИ ЗАПИТВАНЕТО

Продава 3-СТАЕН
град София, Бояна
Обява: 1c176405961824257

360 000 €
704 098.80 лв.
История на цената
(2 927 €, 5 724.71 лв./m2)

Цената е с включено ДДС
ЗАПАЗИ ОБЯВАТА

Местоположение: град София, Бояна

Допълнителни данни за имотите в района и сравнение с други райони

Покажи

Период

и 5 месеца

* Средните цени са определени чрез медианна стойност